Продається квартира Волинська, Луцький, Струмівка, Чикаленка, 1 (№ 213-192-277)

Ціна: 54 000 $
Характеристики
| Ціна: | 54 000 $ |
|---|---|
| № об'єкта: | 213-192-277 |
| Кімнат: | 1 розд |
| Поверх: | 8 / 8 ліфт |
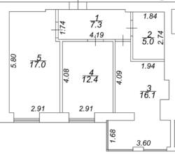
| Площа: | 57.8 / 29.4 / 16.1 м2 |
| Санвузол: | 1 сумісний |
| Балкон: | лоджія |
| Додатково: | новобудова |
Адреса: Волинська, Луцький, Струмівка, Чикаленка, 1
Продається двокімнатна квартира у ЖК Модерніст (масив «за Модерном»)
300м від рівненського кільця над трасою
Струмівка-Підгайці. Зупинка міського транспорту фактично на території ЖК (маршрутка №7).
Площа квартири після замірів БТІ -57.8кв.м.
Здача будинку — 4 квартал 2025 року
Наповнення квартири:
тепла підлога;
напівсуха стяжка;
чистова гіпсова штукатурка (під ремонт);
газовий котел;
радіатори;
хороші броньовані двері;
висота стелі 2.8м
Комунікації:
центральна вода;
центральна каналізація;
електрика заведена в кожну квартиру (5кВат).
газ.
У комплексі передбачена комерційна інфраструктура: мережевий супермаркет, аптека, відділення Нової пошти тощо.
Ціна: 54.000$
Огляд за тел. 097 000 44 17 Олена
Агентство нерухомості «Re:Live», м.Луцьк.










